Sustainable, affordable modular homes
The Long house explores ideas of sustainable, low cost modular housing for Ghana and similar climates.
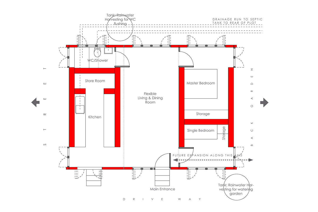
The precast modular components allow for quick assembly, minimal wet trades and easy Expansion. The roof shell is an insulated precast panel which forms part of the passively ventilated roof structure. The central part of the dwelling is sheltered by the Verandah is either side. The Verandah is also take into account the social aspect of living in small communities where strong relationships are formed between neighbours.
Rammed earth bricks and walls form part of the partitioning and allow community involvement in the construction.








